

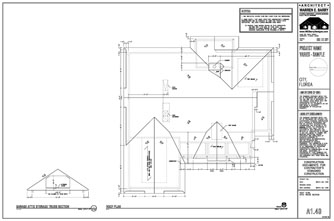
The Roof Plan shows the design, shape, and slope of the roof. The Roof Plan also shows the location of dormers, chimneys, and other similar features. In addition, the Roof Plan indicates important design characteristics that may effect the design of the trusses. Such characteristics include design features like tray ceilings, raised ceilings, areas of site framed construction, attic storage trusses, bonus rooms, and the location of interior bearing walls.