

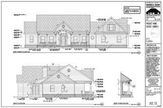
Exterior Elevations show what the completed home will look like by depicting a two dimensional view of the exterior design. Roof design, finish materials, exterior doors and windows, and trim work are all indicated on the elevations. Other important aspects such as critical dimensions for code compliance, truss bearing heights, window head heights, and finished floor elevations are also given.