

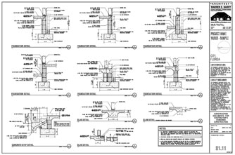
Foundation details are used to detail and describe structural information relating to the foundation that can no be fully or clearly represented on the foundation plan. A section view is shown through most of the unique foundation and concrete slab conditions that exist within the project.