

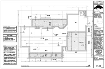
The Foundation Plan is a drawing used to lay out the foundation design as required to properly support the building. This plan locates all interior and exterior footers for bearing walls and columns. This plan also locates concrete slab elevation changes, electrical floor outlets, recessed showers, and other design features affecting the concrete work. In addition to the foundation plan, some structures also require structural drawings to detail floor framing and roof framing for site framed construction when utilized.