Architectural Services for Custom Homes

and Light Commercial Buildings

ARCHITECT
Warren E. Barry
DBA: W.E.B. Designs
(352) 472-2600
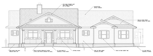
Prange residence
Country Home House Plans
Copyright ©: Website Design and Website Content Designed by Florida Architect Warren E. Barry, #AR93495